Камины Очаг — когда деньги не вылетают в трубу!

Печь Grill'D Zorro Long

6ef7b2459c20
Доставка в Новосибирск
Удобство оплаты
Почему звонить в Очаг уже сейчас?
  • Единая цена по всей России
  • Бесплатная доставка
  • Понимаем любой бюджет
  • Считаем ВСЕ варианты
  • Инструкции и видео для Монтажа
  • Доступно, Оперативно, Профессионально
  • Более 2 000 монтажей за 17 лет

Примеры работ     #Степан_Знает

Описание
Характеристики

Общие

Производитель:
Страна-производитель:
Россия
Гарантия
:
1 год
Материал печи:
Нержавеющая сталь
Серия:
Zorro

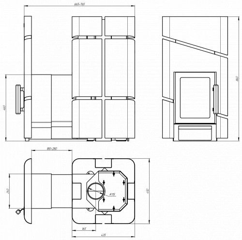
Размеры

Макс. длина поленьев:
39 см
Масса камней:
135 кг
Общая длина:
765
Диаметр дымохода:
115 мм
Общая ширина:
450 мм
Общая высота:
860 мм
Общий вес:
64 кг

Производительность

Объём парной:
16 м³

Особенности

Бак для воды:
Опционально
Дверь со стеклом:
Закладка дров:
Облицовка из камня:
Нет
Особенность конструкции:
Открытая каменка
Теплообменник:
опционально
За те же деньги