Камины Очаг — когда деньги не вылетают в трубу!

Печь ProMetall Атмосфера L Пироксенит

6021e9ef4130
В наличии
184 700 
ПроизводительProMetall Страна-производительРоссия СерияАтмосфера
Доставка в Новосибирск
Удобство оплаты
Почему звонить в Очаг уже сейчас?
  • Единая цена по всей России
  • Бесплатная доставка
  • Понимаем любой бюджет
  • Считаем ВСЕ варианты
  • Инструкции и видео для Монтажа
  • Доступно, Оперативно, Профессионально
  • Более 2 000 монтажей за 17 лет

Примеры работ     #Степан_Знает

Характеристики

Общие

Производитель:
Страна-производитель:
Россия
Гарантия
:
3 года
Материал печи:
Чугун
Серия:
Атмосфера

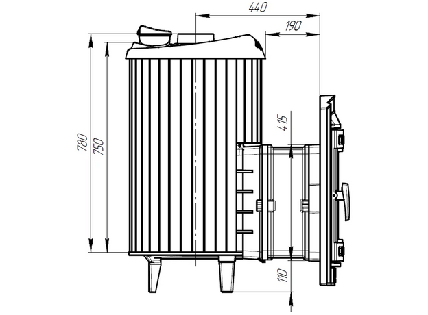
Размеры

Макс. длина поленьев:
45 см
Масса камней:
75 кг
Общая длина:
775
Диаметр дымохода:
115 мм
Общая ширина:
575 мм
Общая высота:
955 мм
Общий вес:
180 кг

Производительность

Время нагрева бани:
80-111
Объём парной:
20 м³
Примерный расход дров:
5-17

Особенности

Бак для воды:
Опционально
Дверь со стеклом:
Закладка дров:
Облицовка из камня:
Пироксенит
Особенность конструкции:
Внутренняя каменка
Теплообменник:
Опционально