Камины Очаг — когда деньги не вылетают в трубу!

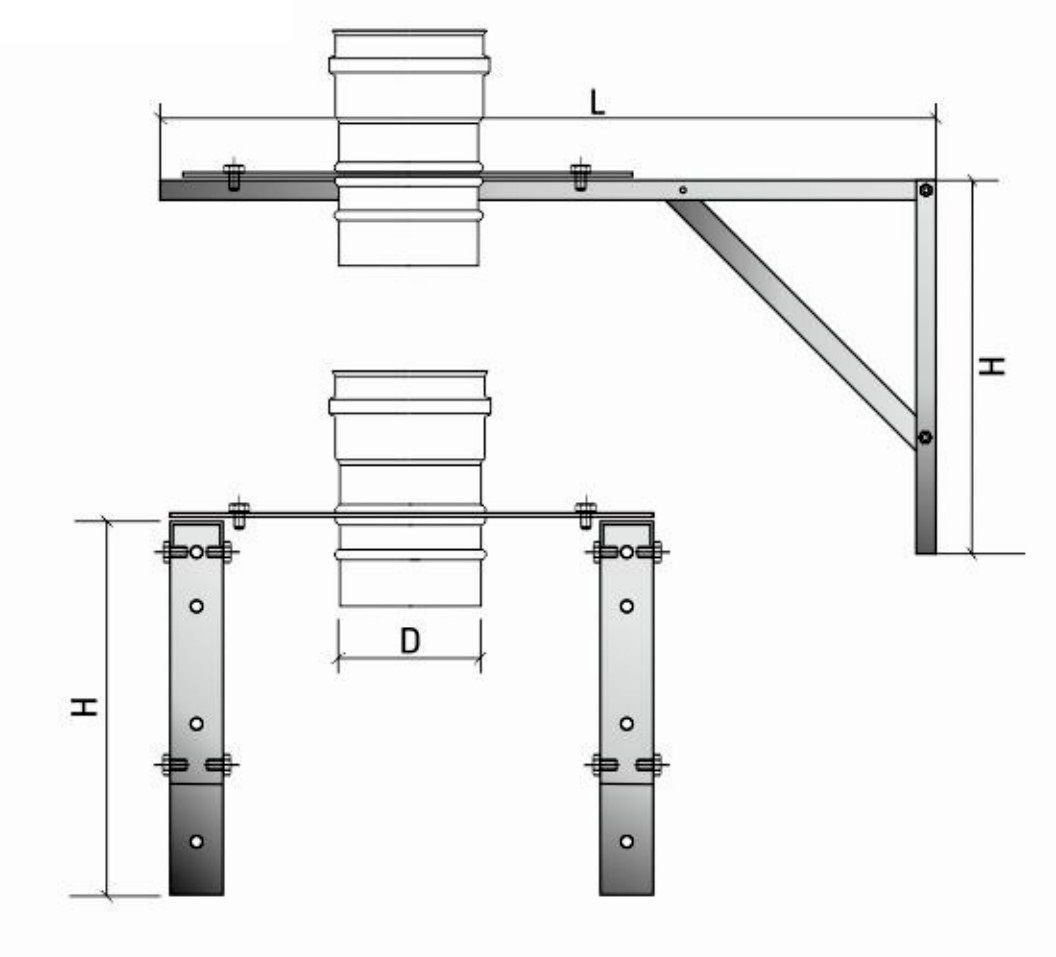
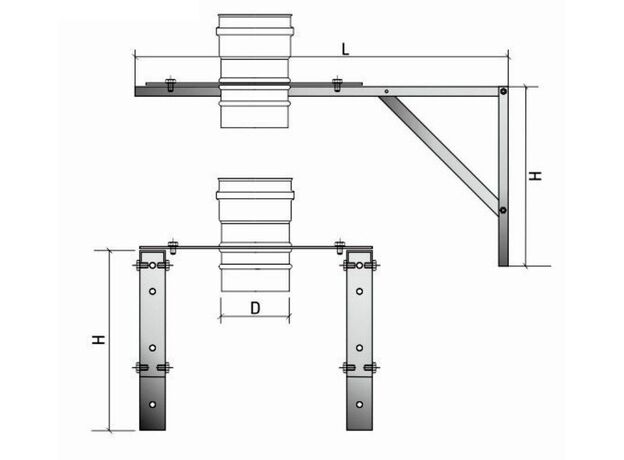
Крепление регулируемое КР 1000

cca09867bcae
Доставка в Новосибирск
Удобство оплаты
Почему звонить в Очаг уже сейчас?
  • Единая цена по всей России
  • Бесплатная доставка
  • Понимаем любой бюджет
  • Считаем ВСЕ варианты
  • Инструкции и видео для Монтажа
  • Доступно, Оперативно, Профессионально
  • Более 2 000 монтажей за 17 лет

Примеры работ     #Степан_Знает

Описание
Характеристики

Общие

Производитель:
Страна-производитель:
Россия
Гарантия
:
1 год
Назначение дымохода:
  • Дымоходы для каминов
Материал дымохода:
Нержавеющая сталь
Тип элемента дымохода:

Особенности

Цвет дымохода:
Нержавеющая сталь