Камины Очаг — когда деньги не вылетают в трубу!

Топка Fireway Dagmar

e9c947abb0e3
Доставка в Новосибирск
Удобство оплаты
Почему звонить в Очаг уже сейчас?
  • Единая цена по всей России
  • Бесплатная доставка
  • Понимаем любой бюджет
  • Считаем ВСЕ варианты
  • Инструкции и видео для Монтажа
  • Доступно, Оперативно, Профессионально
  • Более 2 000 монтажей за 17 лет

Примеры работ     #Степан_Знает

Описание
Характеристики

Общие

Производитель:
Страна-производитель:
Россия
Гарантия
:
5 лет
Остекление:
Материал корпуса:
Материал топки:
  • Чугун
Конструкция топки:

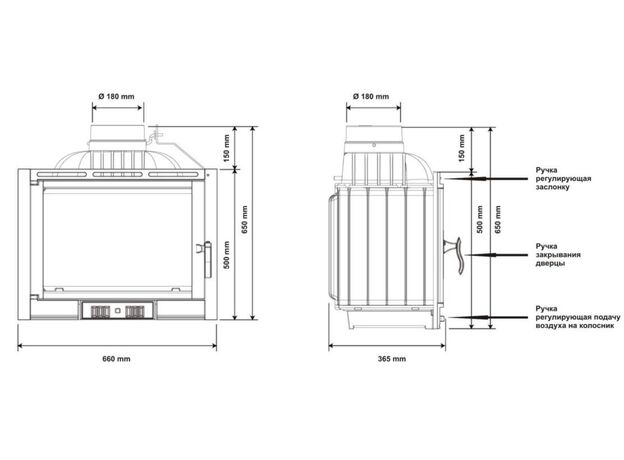
Размеры

Диаметр дымохода:
180 мм
Общая ширина:
660 мм
Общая глубина:
365 мм
Общая высота:
650 мм
Общий вес:
84 кг
Высота рамки:
318 мм
Ширина рамки:
504 мм

Производительность

Мощность:
10 кВт
КПД:
75%
Площадь отопления:
100 м²
Объем отопления:
250 м³
Использование для отопления:

Особенности

Водяной контур:
Нет
Подвод внешнего воздуха:
Нет
Дожиг газов:
Подача воздуха на стекло:
Да
Зольный ящик:
Нет
Шибер:
Да
Подъем стекла вверх:
Инструкции

Технические данные (Технические_характеристики_каминной_топки_Fireway_Dagmar.pdf, 1,257 Kb) [Скачать]