Камины Очаг — когда деньги не вылетают в трубу!

Топка Romotop Impression R/L 2G L 83.60.34.21

4cddb0b7c8e8
Доставка в Новосибирск
Удобство оплаты
Почему звонить в Очаг уже сейчас?
  • Единая цена по всей России
  • Бесплатная доставка
  • Понимаем любой бюджет
  • Считаем ВСЕ варианты
  • Инструкции и видео для Монтажа
  • Доступно, Оперативно, Профессионально
  • Более 2 000 монтажей за 17 лет

Примеры работ     #Степан_Знает

Описание
Характеристики

Общие

Производитель:
Страна-производитель:
Чехия
Гарантия
:
5 лет
Остекление:
Материал корпуса:
Материал топки:
  • Вермикулит
Конструкция топки:
Стекло с подъемом вверх:
Да

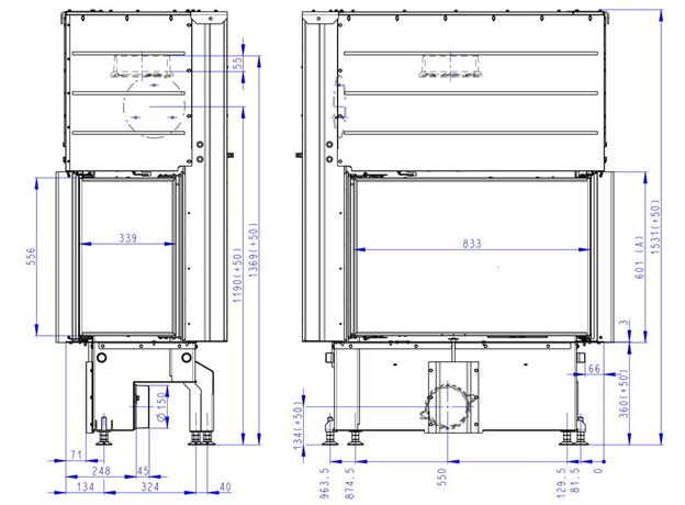
Размеры

Диаметр дымохода:
200 мм
Общая ширина:
1068 мм
Общая глубина:
574 мм
Общая высота:
1531 мм
Общий вес:
310 кг
Высота рамки:
556 мм
Ширина рамки:
833 мм

Производительность

Мощность:
11,15 кВт
КПД:
81,1%
Площадь отопления:
120 м²
Объем отопления:
300 м³
Использование для отопления:

Особенности

Водяной контур:
Нет
Подвод внешнего воздуха:
Дожиг газов:
Подача воздуха на стекло:
Да
Зольный ящик:
Нет
Шибер:
Нет
Подъем стекла вверх:
За те же деньги