Камины Очаг — когда деньги не вылетают в трубу!

Печь Astov Ферро П4С 600

65793a8e64c8
Доставка в Новосибирск
Удобство оплаты
Почему звонить в Очаг уже сейчас?
  • Единая цена по всей России
  • Бесплатная доставка
  • Понимаем любой бюджет
  • Считаем ВСЕ варианты
  • Инструкции и видео для Монтажа
  • Доступно, Оперативно, Профессионально
  • Более 2 000 монтажей за 17 лет

Примеры работ     #Степан_Знает

Описание
Характеристики

Общие

Производитель:
Страна-производитель:
Россия
Гарантия
:
5 лет
Материал отделки:
Материал топки:
  • Шамот

Размеры

Диаметр дымохода:
200 мм
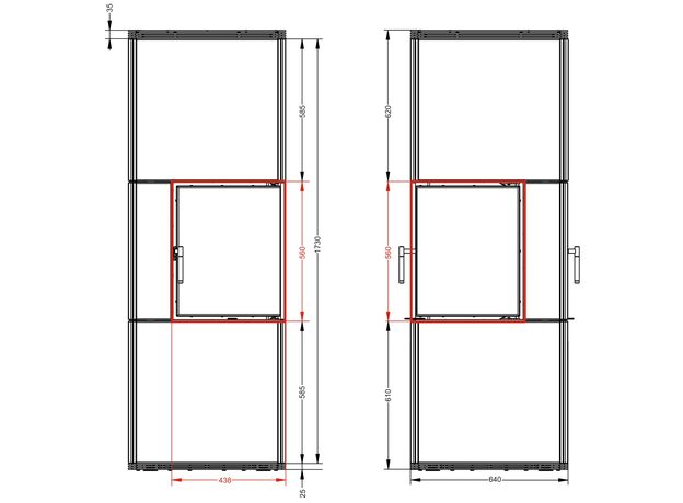
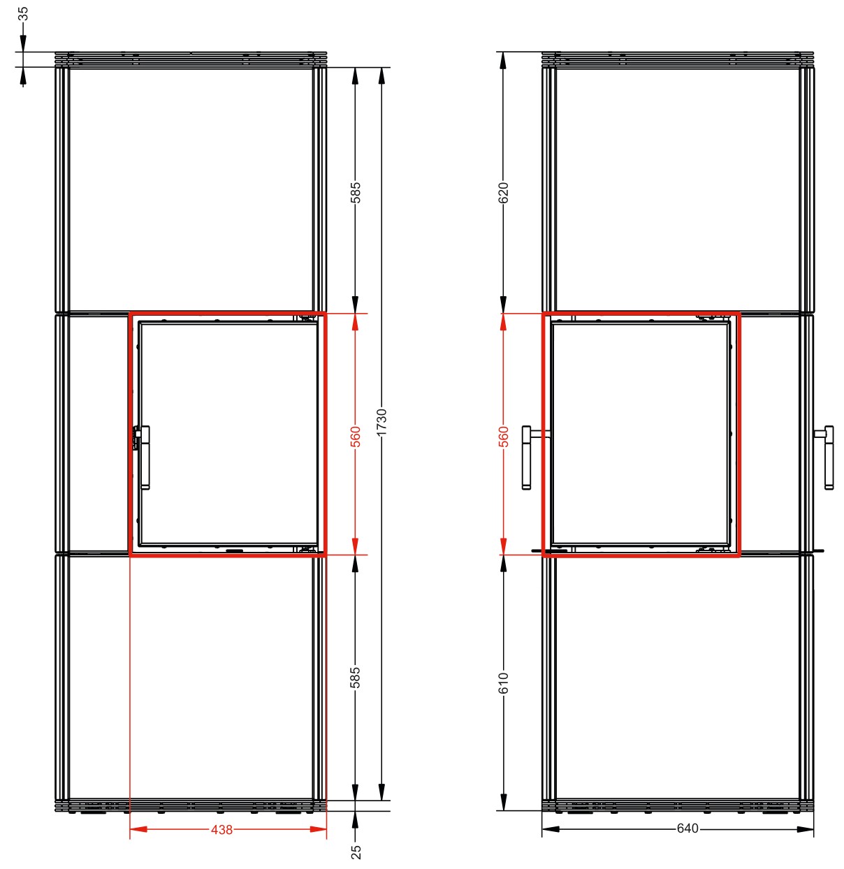
Общая ширина:
640 мм
Общая глубина:
640 мм
Общая высота:
1790 мм
Общий вес:
260 кг

Производительность

Мощность:
5 кВт
КПД:
82%
Площадь отопления:
50 м²
Объем отопления:
125 м³
Использование для отопления:

Особенности

Водяной контур:
Нет
Вывод трубы:
Подвод внешнего воздуха:
Дожиг газов:
Подача воздуха на стекло:
Да
Плита для готовки:
Нет
Духовка:
Нет
Инструкции

Технические данные (Технические_характеристики_печи-камины_Астов_П4С_600_Ферро.pdf, 18,733 Kb) [Скачать]

За те же деньги