Камины Очаг — когда деньги не вылетают в трубу!

Печь Spartherm Passo XS Style чёрная

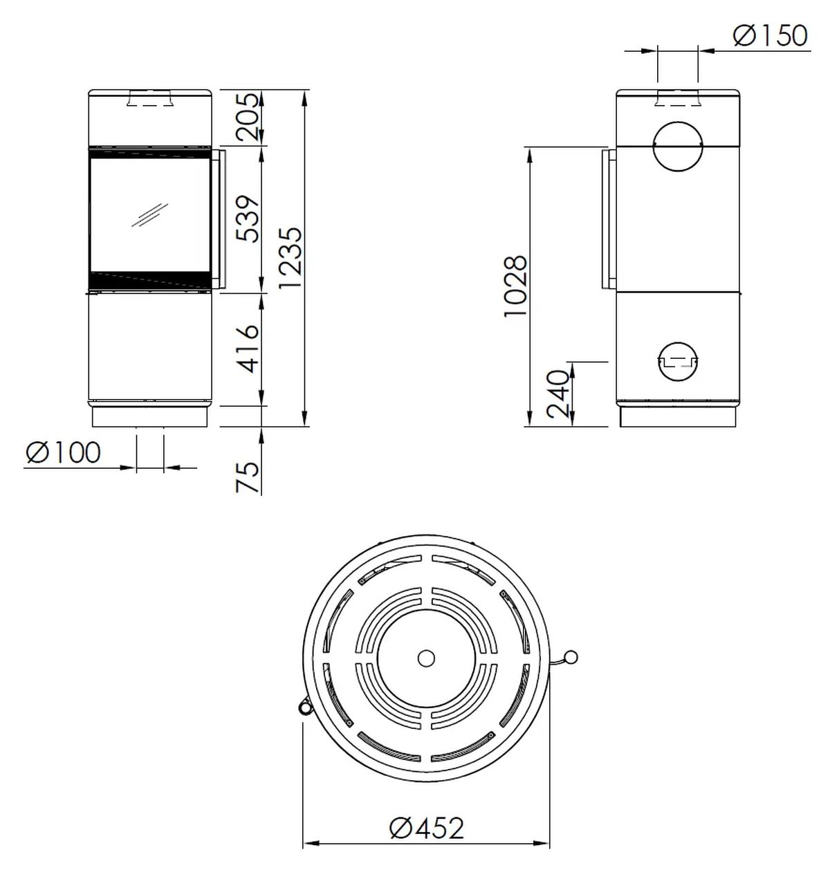
35d3dfdaf3c3
Доставка в Новосибирск
Удобство оплаты
Почему звонить в Очаг уже сейчас?
  • Единая цена по всей России
  • Бесплатная доставка
  • Понимаем любой бюджет
  • Считаем ВСЕ варианты
  • Инструкции и видео для Монтажа
  • Доступно, Оперативно, Профессионально
  • Более 2 000 монтажей за 17 лет

Примеры работ     #Степан_Знает

Описание
Характеристики

Общие

Производитель:
Страна-производитель:
Германия
Гарантия
:
5 лет
Материал отделки:
Материал топки:
  • Шамот
Цвет:
Чёрный

Производительность

Мощность:
6,1 кВт
КПД:
80%
Площадь отопления:
70 м²
Объем отопления:
175 м³
Использование для отопления:

Особенности

Водяной контур:
Нет
Вывод трубы:
Подвод внешнего воздуха:
Дожиг газов:
Подача воздуха на стекло:
Да
Плита для готовки:
Нет
Духовка:
Нет