Камины Очаг — когда деньги не вылетают в трубу!

Печь Romotop Soria Akum песчаник

ce947d845b7b
Доставка в Новосибирск
Удобство оплаты
Почему звонить в Очаг уже сейчас?
  • Единая цена по всей России
  • Бесплатная доставка
  • Понимаем любой бюджет
  • Считаем ВСЕ варианты
  • Инструкции и видео для Монтажа
  • Доступно, Оперативно, Профессионально
  • Более 2 000 монтажей за 17 лет

Примеры работ     #Степан_Знает

Описание
Характеристики

Общие

Производитель:
Страна-производитель:
Чехия
Гарантия
:
5 лет
Материал отделки:
Натуральный камень
Материал топки:
  • Керамика
Цвет:
Песчаник

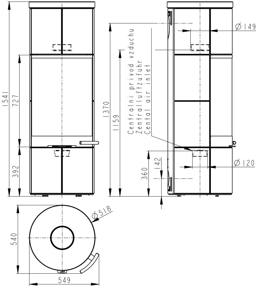
Размеры

Диаметр дымохода:
150 мм
Общая ширина:
518 мм
Общая глубина:
518 мм
Общая высота:
1541 мм
Общий вес:
258 кг

Производительность

Мощность:
4,5 кВт
КПД:
80,5%
Площадь отопления:
50 м²
Объем отопления:
125 м³
Использование для отопления:

Особенности

Водяной контур:
Нет
Вывод трубы:
Подвод внешнего воздуха:
Дожиг газов:
Подача воздуха на стекло:
Да
Плита для готовки:
Нет
Духовка:
Нет
За те же деньги